Продается 3-х комн. квартира, 108.1 кв.м., 3/10 эт

Закрытая территория


Населенный пунктКемерово
Район городаЗаводский
Улицаулица Свободы
Номер дома15
Описание

Купля – Продажа квартиры, объект недвижимости в городе Кемерово.
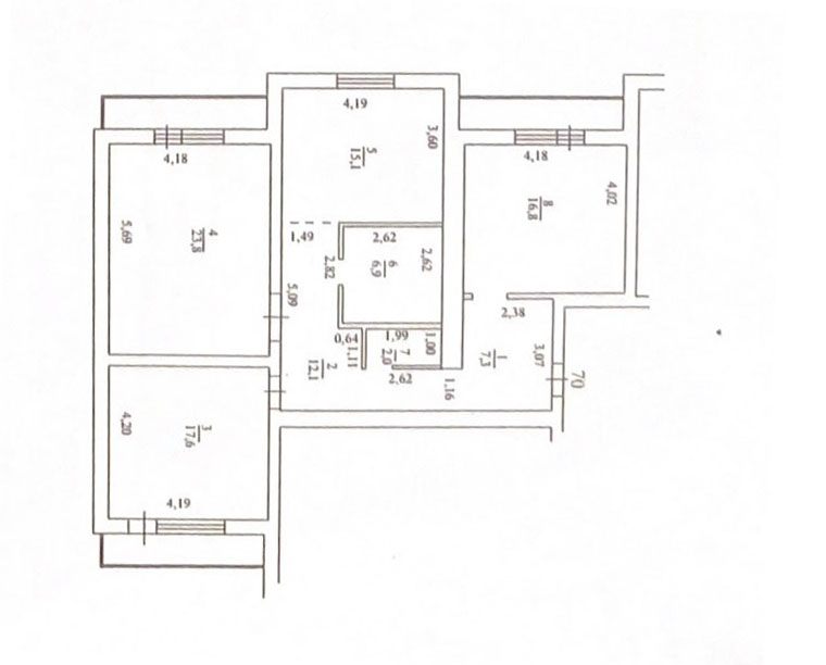
3 (трёх) комнатная квартира в Заводском районе города Кемерово (микрорайон ФПК) по адресу: Свободы улица, 15.
• Дом повышенной комфортности, с закрытой территорией.
• Отличное месторасположение с развитой инфраструктурой. Рядом Торгово-развлекательный комплекс «Гринвич», ТЦ «Лён», банки, а так же различные магазины, аптеки, парикмахерские и др. 
• В шаговой доступности сквер «Новорожденных», школа, детские сады.
• Легко добраться до районов: Центр, Лесная Поляна, Радуга, Южный. При необходимости в шаговой доступности есть автобусные остановки, с которых можно уехать в любой конец города (проспект Ленина, Химиков, Октябрьский, Шахтёров, Молодежный, ул. Кирова и многие другие части города). 
• Квартира расположена на 3м этаже 10и этажного здания, общей площадью 101,6 кв.м. 
• Хорошее состояние. 
• Большая квартира с большими изолированными комнатами, отдельно кухня.
• Два санузла. В большом санузле ванная и душевая кабина.
• Две лоджии и один балкон
• Мебель остаётся частично.
• Во дворе есть закрытый дворик, с детской площадкой, а также подземная парковка.
• Территория просматривается камерами наблюдения

Сведения о недвижимости
ID 298
Ремонт Хороший
Балкон Балкон + лоджия
Доля в квартире Нет
Онлайн показ не хочу
Статус Недвижимости Авито Квартира
Право собственности Посредник
Тип парковки За шлагбаумом во дворе
Способ связи avito По телефону
Узаконена ли планировка Есть
Есть ли право собственности Есть
Тип дома cian Кирпичный
Номер телефона для подключения функционала чатов. выгрузка +79069260006
Комнат в квартире 3
Площадь, кв.м. 108.1
Жилая площадь 3
Площадь кухни, кв.м. 15.1
Этаж 3
Этажность 10
Материал стен Кирпич
Стоимость 10 770 000 руб.
Вся недвижимость
Ищенко Евгений Александрович
Стоимость - 10 770 000 руб.
Цена кв.м. - 99 630 руб.
Сумма переплаты: 0
Сумма общая: 0
Ежемесячный платеж: 0

Похожие предложения