Хорошая двушка в районе 5 поликлиники (во дворе)!
| Населенный пункт | Кемерово |
|---|---|
| Район города | Центральный |
| Улица | проспект Ленина |
| Номер дома | 100А |
Описание
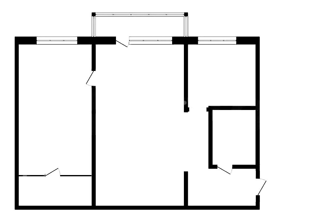
Продам двухкомнатную квартиру в районе пятой поликлиники (во дворе), расположенную по пр. Ленина 100а, панельный дом (1965г.), не угловая, смежная планировка ("арка"), 44,5/30,2/5,6, бетонная стяжка, линолеум, обои, крашеные потолки, деревянные окна, чугунные радиаторы, с/у совмещенный, керамическая плитка на полу на стенах, стальная подводка, пластиковая канализация (частично), балкон застеклен (деревянное остекление).
Отличное месторасположение с развитой инфраструктурой. В шаговой доступности различные магазины, ТРЦ, аптеки, банки, прогулочные зоны и пр. Также рядом с домом детский сад, СОШ 26. В 15-и минутах ходьбы "Комсомольский парк", ТРЦ "Лапландия", "Магнит Экстра", "Променад-1", ТРЦ "Спутник".
Легко добраться до районов: Центр, Ленинский, Лесная Поляна, Кировский, Рудничный, ФПК, Южный. При необходимости в шаговой доступности есть автобусные остановки, с которых можно уехать в любой конец города (проспект Ленина, Химиков, Октябрьский, Шахтёров, Молодежный, ул. Кирова и многие другие географические точки нашего города).
Подходит под ипотеку.
| Сведения о недвижимости | |
|---|---|
| ID | 130 |
| Ремонт | Косметический |
| Балкон | Балкон |
| Доля в квартире | Нет |
| Статус Недвижимости Авито | Квартира |
| Право собственности | Посредник |
| Тип парковки | Открытая во дворе |
| Способ связи avito | По телефону |
| Комнат в квартире | 2 |
| Площадь, кв.м. | 44.5 |
| Жилая площадь | 30.2 |
| Площадь кухни, кв.м. | 5.6 |
| Этаж | 4 |
| Этажность | 5 |
| Материал стен | Панельный |
| Стоимость | 3 820 000 руб. |










